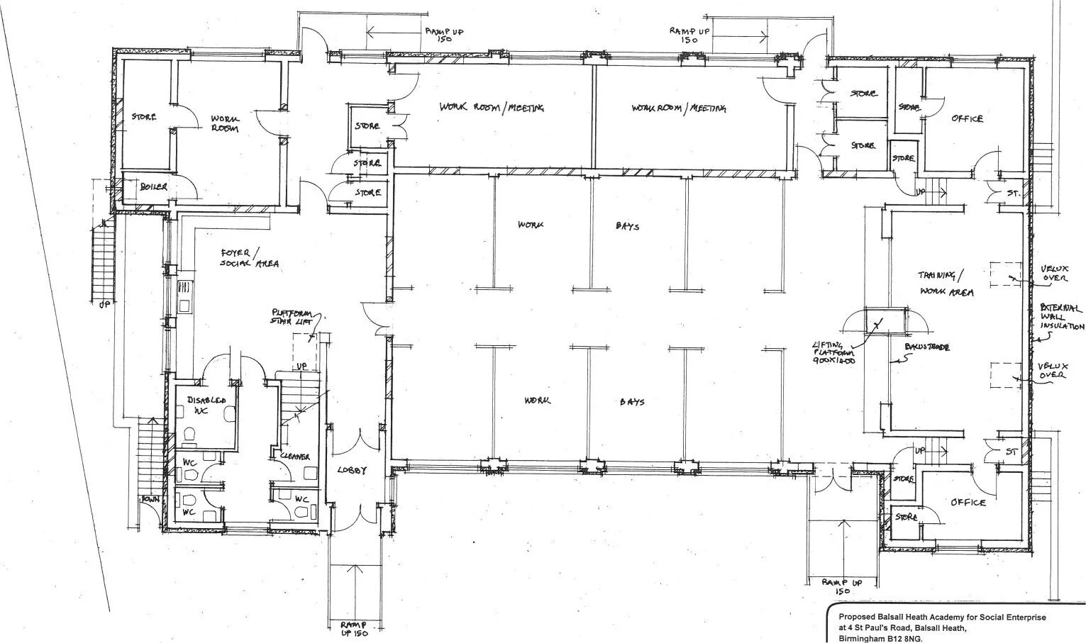
Balsall Heath Academy for Social Enterprise
Client: St Paul’s Community Development Trust
Location: Balsall Heath, Birmingham
Contract Value: £355,000
Description of work undertaken:
Alteration of community hall only used for storage into Balsall Heath Academy for Social Enterprise.
Works included repairing pitched tiled and flat felt roofs, replacement of existing steel windows with uPVC, new heating, plumbing and electrical works throughout, new walls, internal finishes and decoration.
4nr Apprentices were employed on the project.
 
                         
                 
                 
                